Aktuelles

Tagen - Treffen - Feiern
Schön, dass Sie uns gefunden haben.
Wir sind das Löwenteam!

Mitten in Weilersbach, einem Stadtteil von Villingen-Schwenningen, steht seit Jahrhunderten der Löwen. Mit handwerklichem Können und gestalterischem Geschick wurde er in den vergangen zehn Jahren saniert und zu einem Ort der Begegnung entwickelt. Alt und neu verbinden sich zu einem spannungsvollen Ensemble mit besonderer Ausstrahlung.
Unser Team freut sich über Gäste und bietet sich an für Teamsitzungen und Tagungen, für Feiern und Begegnungen. Was nicht zu uns passt, sind ausschweifende Partys.
Diese Räume können Sie mieten
Löwenhalle
Der große Raum im DG für Veranstaltungen bis zu 100 Personen (Reihenbestuhlung) bzw. 80 Personen (Bankettbestuhlung z. B. Hochzeit)
Nebenan liegt der Seminarraum z. B. für Gruppensitzungen. Er eignet sich auch für Cateringaufbau.

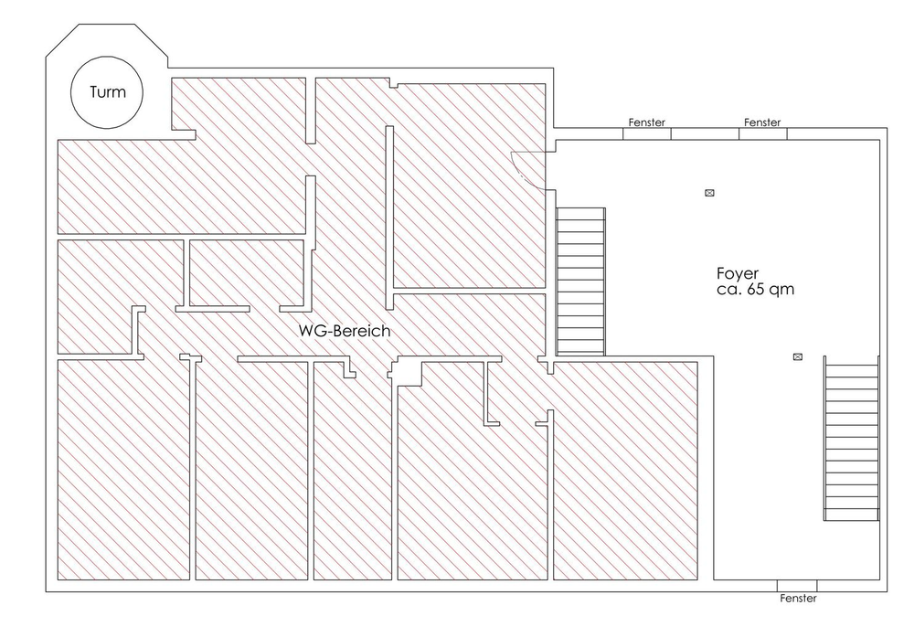
Foyer
Im 1. OG ist das geräumige Foyer. Es eignet sich für den Cateringaufbau oder als Lounge oder einfach als Durchgang.

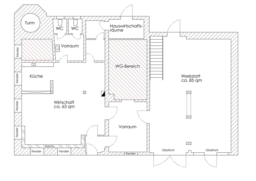
Werkstatt und Wirtschaft
Die Wirtschaft ist der historische Kern. Und auch heute kann man dort auf kleiner Flamme feiern.
Zusammen mit der Werkstatt ist eine Veranstaltungseinheit für ca. 60 Personen möglich. Gut geeignet für Geburtstage und sonstige Familienfeiern.
Sehr geschätzt ist die Möglichkeit, von hier in den weitläufigen Garten zu gelangen.






